Retirement in 2026 is all about smart independence, as the modern retiree seeks tech-integrated, eco-friendly, and easily accessible spaces. We are moving away from the concept of simply ‘downsizing’ to ‘right-sizing’, which means finding the best retirement house plans that fit a specific lifestyle rather than just fitting a smaller budget.
Whether you are a homeowner planning your forever home or a professional looking to expand your portfolio, here is your guide to the best retirement home plans and trends for 2026. These layouts prioritize independent living and ensure peace of mind for family members and residents alike.
What Defines the Best Retirement Home Plans for 2026?
The best retirement house plans balance comfort with foresight. As you design for aging homeowners, these principles help you create spaces that support independence while preparing for future needs.
- Hyper-Accessibility: You must design retirement house plans with zero-step entries and wider doorways to accommodate mobility aids effortlessly. Focus on maintaining a stylish aesthetic that hides these necessary safety features.
- Tech-Readiness: Modern retirement floor plans must integrate smart infrastructure like motion sensors and emergency response systems directly into the walls. This helps ensure safety without cluttering the living space with devices.
- Biophilic Integration: You should prioritize natural light and connection to nature through large windows. These elements significantly improve mental health and maintain a high quality of life for older adults.
- Low-Maintenance & High-Durability Materials: Select finishes that require minimal upkeep and resist wear. Retirement house plans should reduce the physical burden of cleaning and maintenance for empty-nest residents.
- Right-Sized Storage: Design efficient, dedicated storage space that is easily accessible. Careful consideration of ergonomics helps prevent injury and keeps the living area organized and free of tripping hazards.
8 Best Retirement Floor Plans to Watch in 2026
These eight innovative layouts represent the future of retirement house plans, offering the perfect blend of comfort, style, and future-proof functionality for your clients.
1. The Open-Concept Ranch
The open-concept ranch remains a staple in retirement house plans because it eliminates vertical barriers and maximizes the feeling of spaciousness. You can easily draft this layout using the floor plan creator in Foyr Neo, ensuring all wider doorways meet accessibility standards with precise measurement tools.
Key Features:
- Zero-step entries ensure easy access throughout the entire home.
- The open floor plan facilitates seamless social gatherings and movement.
- Large master suites include curbless showers for safety.
- Wide doorways accommodate future mobility aids without renovation.
Size: This layout typically ranges between 1,500 and 1,800 square feet to balance manageability with spaciousness.
Why it Works: This design works because single-story living eliminates the fall risk associated with stairs completely. It creates a seamless flow that allows residents to age in place comfortably without expensive modifications.
Floor Plan: The layout centres on a large living room, with a kitchen nearby for easy meal preparation. Bedrooms are situated on the perimeter to maintain privacy while keeping the central hub accessible.

2. The Dual Master Suite
This layout is gaining popularity in retirement house plans for couples with different sleep schedules or who need separate spaces for health reasons. It provides two equal-sized primary bedroom suites, ensuring both partners enjoy luxury and privacy without compromising on their individual comfort or daily life routines.
With Foyr Neo’s precise measurement tools, you can ensure both master suites meet accessibility standards while maintaining privacy and comfort.
Key Features:
- Two master suites provide flexibility for partners or long-term guests.
- Each bedroom includes an accessible bathroom with grab bars and wide doorways.
- The shared living room encourages social gatherings without compromising privacy.
- Dedicated space allows for future assisted living support if required.
Size: These retirement house plans usually span 2,000 to 2,400 square feet to accommodate dual suites.
Why it Works: It supports healthy sleep habits, which are critical for health as we age into our golden years. The dual suite setup also provides flexibility if a live-in caregiver becomes necessary later.
Floor Plan: The house plan places the living room and kitchen in the center of the home. The two suites occupy opposite ends of the structure to maximize privacy and reduce noise transfer.

3. The Lofted Cottage
For those who want a cozy cottage feel without sacrificing space, lofted retirement house plans offer a main floor lifestyle with bonus space above. Use a robust 3D rendering software like Foyr Neo to visualize how the loft overlooks the living area, creating a sense of volume and grandeur.
Key Features:
- All essential living spaces reside on the accessible main floor.
- The loft provides extra space for hobbies or guests.
- High ceilings allow plenty of natural light to enter.
- Smart home technology controls lighting in high-reach areas.
Size: A cozy cottage style often works best between 1,200 and 1,600 square feet plus the loft.
Why it Works: This design allows for single-level living while keeping a guest bedroom or office upstairs. It gives the empty nester the option to close off the upper level when unused.
Floor Plan: The ground floor contains the master bedroom, kitchen, laundry, and main living areas for easy access. The staircase is positioned discreetly to access the lofted guest bedroom and bathroom above.

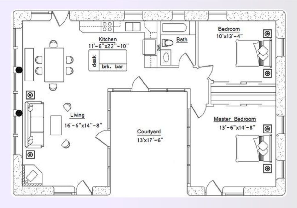
4. The U-Shaped Courtyard
Privacy and outdoor access define U-shaped retirement house plans, which wrap the home around a central garden or patio area. You can model this outdoor connection perfectly using Foyr Neo’s global lighting settings, showing clients how natural light floods the interiors throughout the day for improved wellbeing.
Key Features:
- Every major room opens directly onto the central private courtyard.
- The design maximizes natural light in every interior room.
- It creates a secure outdoor space for safe social interaction.
- Sliding glass doors provide seamless indoor-outdoor transitions.
Size: These luxurious house plans for retirement living often range from 1,800 to 2,200 square feet.
Why it Works: It brings nature into the daily routine without the maintenance of a large yard. The enclosed layout offers excellent security and privacy, providing residents with significant peace of mind.
Floor Plan: The living room, kitchen, and master suites form a U-shape around a central patio. Hallways function as galleries with large windows facing the courtyard to maintain a visual connection.

Lighting is crucial for aging eyes, so understanding how to simulate it is vital for your designs. Watch this tutorial on mastering lighting in Foyr Neo to ensure your retirement house plans are perfectly illuminated.
5. The Standalone ADU (Accessory Dwelling Unit)
The tiny house movement influences retirement house plans through high-quality ADUs placed on a family member’s property for support. Foyr Neo’s interior design software is perfect for optimizing these small footprints, helping you place furniture to maximize every inch of sq ft without clutter.
Key Features:
- Compact footprint minimizes cleaning and general home maintenance tasks.
- Proximity to family provides a strong sense of community.
- Open layout makes the small space feel much larger.
- Smart home technology connects the ADU to the main house.
Size: These compact retirement floor plans are typically between 600 and 900 square feet.
Why it Works: It allows for independent living with the safety net of nearby family assistance. This setup significantly reduces living costs and combats isolation by keeping loved ones close by.
Floor Plan: The plan features a combined living area and kitchenette to save valuable square footage. A separate bedroom and a large accessible bathroom ensure privacy and comfort within the compact footprint.

6. The Adaptive Flex-Room Plan
These retirement house plans include a versatile ‘flex room’ that can evolve from an office to a caregiver’s suite. This adaptability ensures the home meets future needs as health conditions change, allowing the resident to stay in their current home longer rather than moving to assisted living units.
Key Features:
- A dedicated flex room acts as office or bedroom.
- The flex room is located near a fully accessible bathroom.
- Wider doorways allow easy conversion for future medical equipment.
- The layout supports various stages of retirement living.
Size: This versatile house plan typically requires 1,600 to 1,900 square feet to function well.
Why it Works: It acknowledges that retirement needs change over time and prepares the home accordingly. The ability to house a live-in caregiver later creates a truly forever home for older adults.
Floor Plan: The flex room is positioned near the front entrance or garage for separate access. The rest of the house plan follows an open concept flow for the primary residents.

7. The Eco-Modern Compact
Sustainability meets accessibility in these retirement house plans designed for energy efficiency and modern aesthetics with lower utility bills. You can use Foyr Neo to experiment with your eco-friendly ideas from the extensive product library, ensuring the design is both green and stylish for the new home.
Key Features:
- Energy efficiency reduces monthly utility costs for fixed incomes.
- Sustainable materials improve indoor air quality for better health.
- Smart home technology automates climate control for comfort.
- Modern design eliminates clutter and promotes a calm environment.
Size: These efficient retirement house floor plans are usually 1,200 to 1,500 square feet.
Why it Works: Lower utility bills are essential for retirees living on a fixed pension or savings. The focus on healthy materials supports physical well-being and creates a clean, modern living space.
Floor Plan: The layout prioritizes a highly insulated building envelope with strategic window placement. The open floor plan maximizes cross-ventilation and daylight to reduce reliance on artificial heating and cooling.

Image Credit: AI-Generated (Gemini)
8. The RV Garage Home
For the active travelers, these retirement house plans feature a massive garage bay attached to a manageable living space. Foyr Neo allows you to customize structural elements, so you can accurately model the specific dimensions of an RV garage attached to the retirement home design.
Key Features:
- Oversized garage bay protects the RV or travel trailer.
- Lock-and-leave security features provide peace of mind while traveling.
- Low-maintenance landscaping reduces yard work requirements significantly.
- Efficient living space focuses on comfort between trips.
Size: The living area is often 1,200 to 1,400 square feet, excluding the large garage.
Why it Works: It caters to the ‘snowbird’ lifestyle, where travel is a major part of retirement. The house serves as a secure low-maintenance home base that simplifies the logistics of owning an RV.
Floor Plan: The massive garage is the dominant feature, attached directly to the utility room. The living quarters are compact and efficient, often featuring a great room layout for simplicity.

Image Credit: AI-Generated (Gemini)
Critical Design Elements for 2026 Retirement Living
Success in designing retirement house plans relies on incorporating specific details that enhance safety and usability without compromising style.
- Visual Contrast Zoning: Use contrasting colors between floors and walls to help those with vision impairments. This simple design choice helps define spaces clearly and reduces the risk of accidents for residents navigating the home.
- Flooring Safety: Prioritize slip-resistant flooring, such as textured tile or luxury vinyl plank, throughout the home. Consistent flooring materials eliminate dangerous thresholds and make the entire home accessible for mobility aids and walkers.
- Handle-less Cabinetry: Consider push-to-open mechanisms or D-shaped pulls to assist those with reduced grip strength. These features make meal preparation easier and ensure independent access to storage in the kitchen and bathrooms.
- Induction Cooking Standards: Install induction cooktops because they remain cool to the touch and reduce burn risks. This technology adds a layer of kitchen safety, allowing older adults to cook with confidence.
- Toe-Kick & Guidance Lighting: Integrate LED lighting into toe-kicks and hallways to guide nighttime movement, preventing falls. These subtle safety features provide essential visibility for morning coffee routines without the harshness of overhead lights.
See how easy it is to customize kitchen cabinetry and hardware in Foyr Neo. Watch this video to learn how to swap handles and finishes to create safe and accessible kitchens for your clients.
Let Us Build Your Vision with Foyr Design Services
The shift toward right-sizing in 2026 offers an incredible opportunity for designers and developers to create impactful spaces. However, executing these retirement house floor plans requires rigorous attention to detail, where every clearance must be precise and every lighting angle calculated for aging eyes.
Don’t let the technical workload slow down your creative design process or client management. With Foyr Design Services, you can avail the expertise of our designers to turn your rough retirement house plans into photorealistic 3D walkthroughs that sell.
- We transform your simple 2D sketches into immersive 3D models that bring your vision to life with stunning realism.
- Our dedicated team ensures precise adherence to all accessibility dimensions to guarantee safety and compliance for every project.
- We deliver high-quality, photorealistic renderings in 48-72 hours so you can impress clients without missing a single deadline.
- You get fully editable files to make future adjustments easily whenever your client requests changes to the initial design.
- Our comprehensive design service costs as little as $99 per space, offering exceptional value for high-end professional results.
Whether you need to visualize a U-Shaped Courtyard or verify the flow of an Open Ranch, our team of experts will build it for you.
Sign up today and streamline your workflow using Foyr Design Services.
FAQs
What is the best size house for a retiree?
The ideal size for retirement house plans usually falls between 1,500 and 1,800 square feet. This range offers plenty of space for independent living and entertaining social gatherings while keeping maintenance manageable. It strikes the right balance between comfort and the reduced effort needed for daily upkeep.
What type of home is best for retirement?
Single-story homes like the open-concept ranch are generally the best retirement home plans. They eliminate the need for stairs, which significantly reduces fall risks. These accessible home layouts prioritize easy access to all rooms and can easily accommodate mobility aids, ensuring the home remains functional as needs change.
What is the average cost to get a house plan drawing done?
The cost varies, but professional drafting for retirement floor plans can range from $1,500 to over $5,000 depending on complexity. However, using software like Foyr Neo allows designers to create professional retirement house plans themselves at a fraction of the cost, or use affordable services to convert sketches to 3D.




