Choosing a one-story house plan represents a practical decision and a valuable lifestyle upgrade for homeowners. The year 2026 introduces a massive shift toward accessible and highly functional one-story house floor plan options.
Interior designers recognize the immense value of creating an efficient single-story house for modern families. You can explore a variety of sizes to match specific client needs perfectly when utilizing these single-level concepts.
This comprehensive blog provides a clear roadmap from picking a functional one-story house layout to understanding technical requirements. We explore architectural styles and provide excellent choice recommendations to build your perfect single-story home designs.
9 Best One-story House Plan Examples for 2026
Evaluating diverse single-story house plans helps you find the perfect match for your clients. Each layout offers distinct advantages for specific residential requirements.
1. The Modern Farmhouse

The modern farmhouse remains a highly requested one-story house plan offering spacious living for active families. You can utilize the extensive Foyr Neo asset library to visualize exposed wooden beams and expansive kitchen islands effortlessly. This style combines country charm and contemporary clean lines perfectly.
Key Features
- Large front windows invite abundant natural light into the main family areas.
- High vaulted ceilings create an impressive feeling of expansive vertical space.
- Open concept kitchens flow directly into the central family gathering zones.
Layout: This practical layout separates the primary bedroom suite and the secondary bedrooms for acoustic privacy. The central core features an expansive kitchen and a welcoming family room for social interactions.
Why it makes sense: This single-story home plans approach provides exceptional functionality for entertaining guests and managing daily routines. The thoughtful separation ensures quiet retreats while maintaining a vibrant central household hub.
2. The L-Shaped Privacy Oasis

Such innovative 1-story house plans naturally form a secluded outdoor courtyard for quiet relaxation. Designers can use the Foyr Neo ruler tool to measure clearances between exterior patio furniture accurately. The building shape shields the backyard from intrusive street views effectively.
Key Features
- The dedicated bedroom wing separates sleeping quarters from active family entertainment areas.
- Extensive glass walls connect the interior living spaces and the private courtyard.
- The strategic footprint blocks unwanted wind and intrusive neighborhood noise effectively.
Layout: One leg of the house contains the main living areas and the kitchen for daily functions. The perpendicular wing houses the quiet bedrooms and bathrooms to ensure peaceful rest.
Why it makes sense: This single-storey house plan arrangement maximizes lot usage while creating a protected outdoor zone. The intelligent design separates public activities and private relaxation zones without requiring multiple building levels.
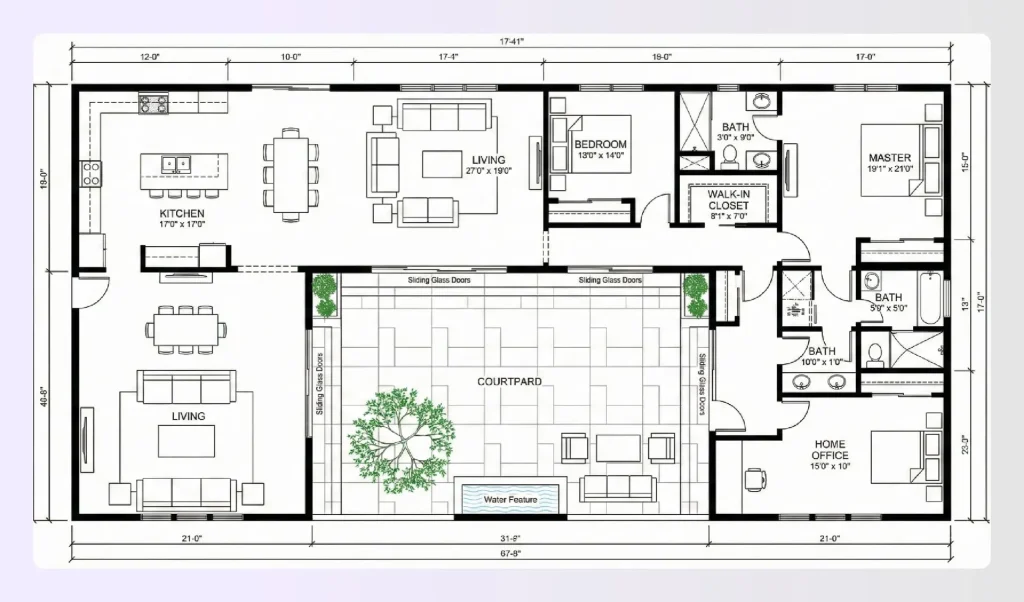
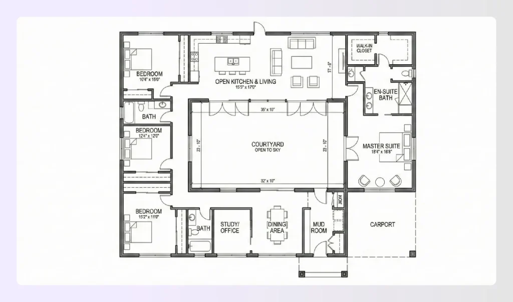
3. The Courtyard-Centric Plan

A courtyard-focused one-story house plan centers daily living activities around an exterior natural focal point. You can implement adjustable dome lighting in Foyr Neo to ensure that your outdoor patio design ideas render perfectly. This architectural approach blurs the line between indoor comfort and outdoor environments.
Key Features
- Internal glass corridors provide continuous visual connections to the central natural garden.
- The protected central outdoor space allows for comfortable year round relaxation.
- Natural sunlight penetrates deep into the home from multiple directions daily.
Layout: The primary suite and the main living spaces typically occupy opposite sides of the central courtyard. A connecting hallway features large windows overlooking the garden to enhance the transit experience.
Why it makes sense: Designing luxury house plans around a central courtyard brings abundant natural light into adjoining interior rooms. This layout creates a calming environment that promotes relaxation and strong connections with nature.
4. The Contemporary Craftsman

The contemporary craftsman style revitalizes traditional aesthetics with open concept interiors and highly functional layouts. You can easily design custom furniture pieces using the Foyr Neo ‘Create New Product’ tool. This one-story house plan emphasizes handcrafted details alongside the practicality required for modern lifestyles.
Key Features
- Prominent front porches feature distinctive tapered columns and natural building materials.
- Built in wooden cabinetry provides charming storage solutions across the entire property.
- Earthy color schemes complement the surrounding landscape features and native vegetation.
Layout: The inviting front entry opens directly into the main living room and an adjoining formal dining room. A central hallway leads to the private bedroom quarters situated at the rear.
Why it makes sense: This one-story home plans approach delivers immense curb appeal while maintaining an efficient spatial arrangement. The timeless architectural details ensure the property retains long term market desirability effectively.
Visualizing these intricate craftsman details requires powerful 3D modeling software to communicate design ideas to clients. You can learn how to create accurate interior renderings quickly by watching this video from Foyr Neo.
5. The Soft Modern Glass House

The soft modern one-story house plan utilizes extensive glass panels to showcase surrounding exterior landscape views. Designers can leverage Foyr Neo AI-driven rendering to capture complex natural lighting and interior shadow interactions. This style softens modern architecture by incorporating warm natural materials.
Key Features
- Floor to ceiling windows erase visual boundaries between the interior and exterior.
- Warm wood accents balance the visual appearance of exposed structural steel elements.
- Flat roof profiles emphasize the sleek horizontal architectural design aesthetic perfectly.
Layout: The completely open-concept kitchen living area stretches across the rear elevation to maximize panoramic exterior views. Service areas occupy the windowless central core to preserve exterior walls for bedrooms.
Why it makes sense: These unique story layouts provide an unparalleled visual connection to nature, enhancing the living experience. The abundant natural lighting reduces daytime energy consumption and creates an uplifting atmosphere.
6. The Smart Square (Affordable & Compact)

The compact square footprint represents the most cost-effective one-story house plan for budget-conscious homeowners. You can utilize Foyr Neo guidelines to ensure symmetrical design elements within these constrained spaces. This highly efficient geometric shape significantly minimizes exterior wall surface area.
Key Features
- A centralized utility core minimizes expensive plumbing piping runs across the house.
- Built in storage solutions maximize every available inch of the compact interior floor.
- Strategic exterior window placements make small interior spaces feel significantly larger.
Layout: A central great room serves as the primary hub for dining and entertainment within this footprint. Bedrooms sit tucked into the four corners of the house to maximize privacy.
Why it makes sense: This straightforward one-story home plans design maximizes usable sq ft while minimizing complex roof structures. It provides an excellent entry point for new homeowners seeking a practical property.
7. The Zoned Family Layout

A strategically zoned one-story house plan separates noisy active areas and quiet sleeping quarters for family harmony. You can use the Foyr Neo pan feature to adjust camera positions and showcase these zones beautifully. This approach ensures late night entertainment does not disturb sleeping children.
Key Features
- Distinct architectural flooring thresholds clearly define transitions between public and private zones.
- The dedicated family playroom sits conveniently near the secondary bedrooms for access.
- A central island kitchen acts as the command center overlooking the active living zones.
Layout: The intelligent design clusters the kitchen and the great rooms together on one distinct side. A long connecting hallway acts as an acoustic buffer leading to the private sleeping quarters.
Why it makes sense: These practical one-story house floor plan designs adapt seamlessly to the evolving needs of families. The clear separation of activities reduces household friction and promotes a peaceful living environment.
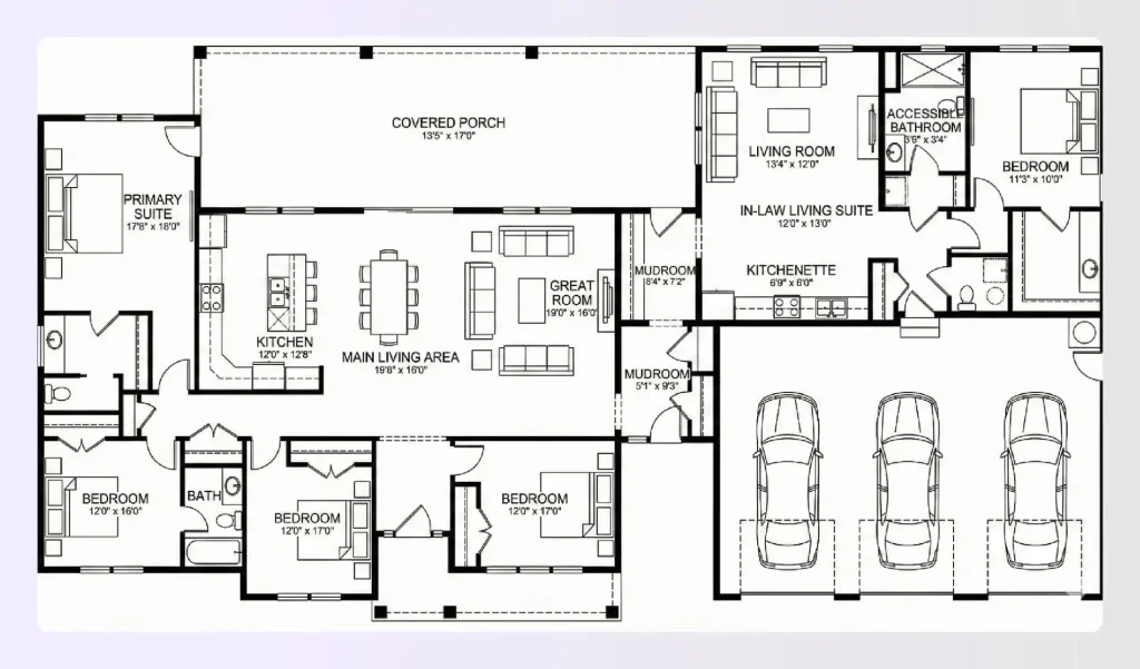
8. The Multi-Generational Wing

Incorporating a dedicated suite into your one-story house plan accommodates aging parents and returning adult children perfectly. Designers can utilize the Foyr Neo detach clone tool to customize individual furniture elements independently. This multi-generation home layout provides essential private living spaces while maintaining close physical proximity.
Key Features
- The private secondary suite includes a dedicated kitchenette and an accessible modern bathroom.
- Separate exterior house entrances allow family members to come and go quite independently.
- Wider interior room doorways ensure comfortable wheelchair mobility throughout the property effortlessly.
Layout: The main dwelling features a traditional layout while a secondary suite attaches to the far side. A shared mudroom typically serves as the primary physical connection point between the residences.
Why it makes sense: This brilliant 1-story house plan concept offers remarkable flexibility for diverse family living arrangements. It represents an excellent choice for families seeking to share financial resources while maintaining privacy.
9. The Pavilion Style

The pavilion-style one-story house plan breaks the residence into multiple distinct structures connected by enclosed breezeways. You can rapidly iterate on these layouts using the intuitive drag and drop functionality found in Foyr Neo. This approach creates highly specialized building wings that maximize exposure to landscapes.
Key Features
- Glass enclosed connecting corridors offer clear protected views of the surrounding natural exterior gardens.
- Each individual structural pavilion features specialized ceiling treatments tailored to its specific daily purpose.
- Expansive exterior stone patios fill the negative spaces created between the separated building structures.
Layout: One central pavilion hosts the primary gathering spaces while separate satellite structures contain sleeping quarters. The sprawling structural footprint requires a generously sized building lot to accommodate the separated structures.
Why it makes sense: This level house plan provides acoustic privacy and creates distinct experiential zones throughout the property. The fragmented exterior layout allows architects to navigate sloped terrains and preserve mature trees successfully.
Seeing how a floor plan moves from a 2D sketch to a 3D space helps you and your client make better decisions earlier in the process. Watch this Foyr Neo tutorial to see how you can turn a 2D floor plan to a 3D model in minutes.
Best Practices for Designing Your One-story House
Implementing established interior design principles ensures your new single-storey house plans function efficiently and provide immense daily comfort.
- Smart Interior Zoning: Every well-executed one-story house plan separates the home into defined functional zones, typically a public area covering the kitchen, dining room, and living room, and a private area for bedrooms and bathrooms. This helps improve daily livability and reduce noise transfer between household members.
- Vertical Freedom: Single-level architecture allows designers to incorporate dramatic vaulted ceilings and clerestory windows without disrupting upper-floor layouts. These vertical elements draw the eye upward and make compact footprints feel significantly more expansive immediately.
- Seamless Transitions: A modern one-story house plan must eliminate disruptive floor height variations between the interior rooms and exterior patios. This smooth flooring continuation improves accessibility and creates a unified aesthetic flow throughout the property.
2026 Tech Integration: Designing a ‘Smart’ Single-story Home
Modern story house plans require thoughtful technological integrations to support modern conveniences and ensure long term residential energy efficiency seamlessly.
- Centralized Automation: A comprehensive smart home system connects your security cameras and temperature controls into one easily accessible digital management hub. This centralized approach eliminates wall clutter and allows homeowners to monitor their property using a single mobile application.
- Solar Readiness: The expansive roof surfaces characteristic of ranch house plans provide an ideal platform for installing high-efficiency solar panel arrays. Pre-wiring your home during the initial construction phase reduces future installation costs and supports sustainable energy independence.
- Smart Lighting Scenarios: Intelligent lighting systems adjust color temperatures throughout the day to support healthy circadian rhythms and enhance interior design aesthetics. Designers can program specific lighting scenes for entertaining guests or relaxing quietly within their meticulously crafted one-story house plan.
How to Choose the Perfect Lot for Your Single-story Layout?
Evaluating potential building sites requires careful consideration because a sprawling one-story house plan demands a significantly larger land footprint.
- Topography Matters: Flat building sites minimize expensive grading requirements and simplify the foundational construction process for your home. Sloped properties require costly retaining walls and complicate connections to the exterior landscape.
- Sun Orientation: Positioning the primary living spaces to capture southern exposure maximizes natural warmth during cold winter months. Proper site orientation reduces reliance on artificial lighting and lowers long term utility costs.
- Zoning & Setbacks: Municipal regulations dictate exactly how close your structure can sit relative to the established property boundary lines. A wide one-story house plan often conflicts with these strict residential setback limits.
Build Your One-story House Plan with Foyr
Transitioning your initial structural concepts into accurate visual presentations requires a powerful and intuitive digital interior design platform like Foyr Neo. Our cloud-based interior design software streamlines your professional workflow and helps you secure rapid project approvals from your excited clients.
- Create accurate 2D floor plans and convert them to 3D models with a single click.
- Access a cloud-based library of 60,000+ render-ready 3D furniture and decor models.
- Generate photorealistic 12K quality renders in minutes using AI-driven cloud rendering technology.
- Present immersive 360-degree 3D walkthroughs to clients in just five clicks from the platform.
- Collaborate with team members and clients in real time from any device, anywhere.
Whether you are working on a compact square layout or a multi-wing family home, Foyr Neo gives you the tools to design, present and secure client approval faster than traditional workflows allow.
Start your design journey today by signing up for a 14-day free trial of Foyr Neo.
FAQs
What are the benefits of one-story house plans?
A well-designed one-story house plan offers unparalleled lifetime accessibility and eliminates the physical strain of staircases. These practical structures are easy to maintain and provide tremendous flexibility for implementing high vaulted ceilings. They represent an exceptional investment for retirees and individuals with limited mobility.
Are one-story house plans good for families?
Yes, these layouts are fantastic for families because they eliminate the risk of falls on internal staircases. A zoned layout separates the entertainment spaces and the quiet bedrooms to ensure a peaceful living environment. The open sightlines also allow parents to easily and efficiently supervise their children.
What square footage is common for one-story homes?
The typical size ranges extensively depending on the specific architectural style and the intended purpose of the property. A compact starter home might feature 1,200 square feet, while an expansive luxury estate frequently exceeds 4,000 square feet.
Do one-story house plans include open floor layouts?
Modern single-level designs almost universally incorporate spacious story floor plans and open concept layouts to maximize the available square footage. Removing restrictive interior walls allows abundant natural sunlight to flow freely between the kitchen and the primary family gathering spaces.
Can one-story homes have garages and porches?
Absolutely, incorporating attached garages and sprawling porches greatly enhances the functionality of any single-level property. These valuable additions significantly expand the usable footprint and provide fantastic transitional zones for comfortable, daily outdoor residential living.



