Thinking about exploring the world of container homes? You are in for an exciting journey. These structures are quickly emerging as a canvas for sustainable, stylish, and surprisingly spacious living. From a cozy minimalist studio to a multi-level family home, the possibilities are nearly endless.
The real magic happens in the planning stage. A well-thought-out container house plan transforms a simple shipping container into a functional and beautiful home. Container home interior design ideas are all about maximizing every square inch, ensuring a logical flow, and creating a space that feels open and inviting. The right layout makes all the difference.
This guide will walk you through nine amazing container home floor plans to spark your imagination. We will explore different sizes, layouts, and design styles to help you find the perfect fit for a modern lifestyle. Get ready to rethink what’s possible with these incredible structures.
Common Container Floor Plan Sizes and What They Offer
Before you start designing container home floor plans, it is essential to understand the standard container sizes you will be working with. Each size offers unique opportunities and challenges for your layout.
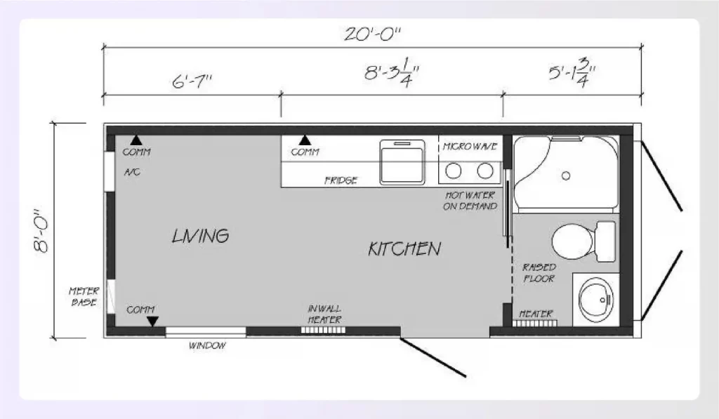
- 20 ft Standard Container (20′ x 8′): This compact option provides about 160 square feet of space. It is perfect for a tiny home, a detached office, or a guest suite. Its limited footprint demands a clever and efficient layout where every piece of furniture serves a purpose, making minimalism your best friend.
- 40 ft Standard Container (40′ x 8′): As the most popular choice, this container gives you 320 square feet to play with. This size is ideal for a comfortable one-bedroom or even a cozy two-bedroom shipping container home floor plan with a functional kitchen, living area, and bathroom.
- High Cube Containers (9.5′ tall): If you crave a spacious and airy feel, high cube containers are a fantastic choice. That extra foot of vertical height makes a massive difference, allowing for lofted beds, taller windows, or impressive light fixtures without making the space feel cramped.
9 Inspiring Container Home Floor Plans by Design & Size
Here are nine unique container home floor plans that showcase the versatility and creativity of container living, from single-unit studios to sprawling multi-container homes.
Small & Efficient: 20ft Container Home Floor Plans
These plans prove that you do not need a lot of space to live comfortably and stylishly. They are perfect for solo dwellers or couples.
1. The Minimalist Studio
This layout embraces simplicity with an all-in-one living space. It typically places the bathroom at one end, a kitchenette along one wall, and a combined living and sleeping area that adapts to your needs throughout the day.
Key Features:
- An open-concept layout that maximizes the feeling of spaciousness.
- Multi-functional furniture is essential for a clutter-free environment.
- A compact bathroom and kitchenette are tucked away neatly.
- Large windows or a glass door enhance natural light.
Best For: Individuals or couples who love minimalist living and want a simple, affordable, and highly efficient home or getaway cabin.

2. The Office & Guest Suite Combo
This design cleverly separates work and relaxation within a single 20ft container. One half serves as a productive office space, while the other functions as a comfortable guest suite with a Murphy bed and a small bathroom.
Key Features:
- A physical divider like a bookshelf or curtain creates distinct zones.
- The office area includes a built-in desk and smart storage solutions.
- The guest area features a fold-down bed to save space.
- A shared or separate entrance can be included for privacy.
Best For: Professionals who work from home and need a dedicated workspace that can easily convert into a welcoming space for guests.

Spacious & Practical: 40ft Container Home Floor Plans
With double the space of a 20ft unit, these 40ft plans offer more room for dedicated living areas and growing families.
3. The Open-Concept One-Bedroom
This popular shipping container house floor plan dedicates one end of the container to a private bedroom and bathroom. The remaining space is opened up to create a large, airy living room and kitchen area perfect for entertaining.
Key Features:
- A clear division between private and common living areas.
- The kitchen often features an island for dining and prep.
- The living area is large enough for a comfortable sofa.
- The bedroom can comfortably fit a queen-sized bed.
Best For: 1-bedroom house plans are idea for couples or single individuals who want a traditional home layout with a spacious feel and plenty of room for daily activities.

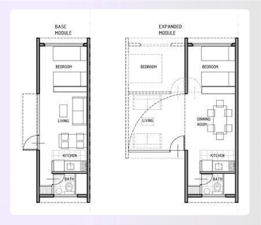
4. The Family-Friendly Two-Bedroom
This layout is a masterclass in space optimization, fitting two cozy bedrooms, a shared bathroom, and a central living area into a 40ft container. The bedrooms are typically at opposite ends for privacy, with the living space in between. To make planning easier, you can use Foyr Neo to drag and drop elements from a library of over 60,000 pre-built 3D models, helping you find the perfect kid-friendly furniture and storage solutions to visualize your container house floor plans accurately.
Key Features:
- Bedrooms are positioned at either end of the container.
- A central, open-plan kitchen and living area connect the home.
- Bunk beds or loft beds can be used to maximize space.
- Smart storage solutions are built into walls and furniture.
Best For: Small families or individuals who need an extra room for guests or a home office and want a functional layout.

Before we explore other container home plans, check out this video on how you can use Foyr to design a container home:
Beyond the Box: Multi-Container Home Floor Plans
Ready to think bigger? Combining multiple containers unlocks a world of architectural creativity, giving you more space and unique layout possibilities.
5. The L-Shaped Layout

This design uses two or more containers joined at a 90-degree angle to create a private outdoor living space. One wing can house the private bedrooms, while the other contains the public living, dining, and kitchen areas.
Key Features:
- Creates a sheltered patio or courtyard perfect for outdoor dining.
- Separates the sleeping quarters from the main living areas.
- Offers multiple entry points and excellent indoor-outdoor flow.
- Large windows facing the courtyard connect the spaces visually.
Best For: Those who love entertaining and want to create a seamless connection between their indoor and outdoor living environments.
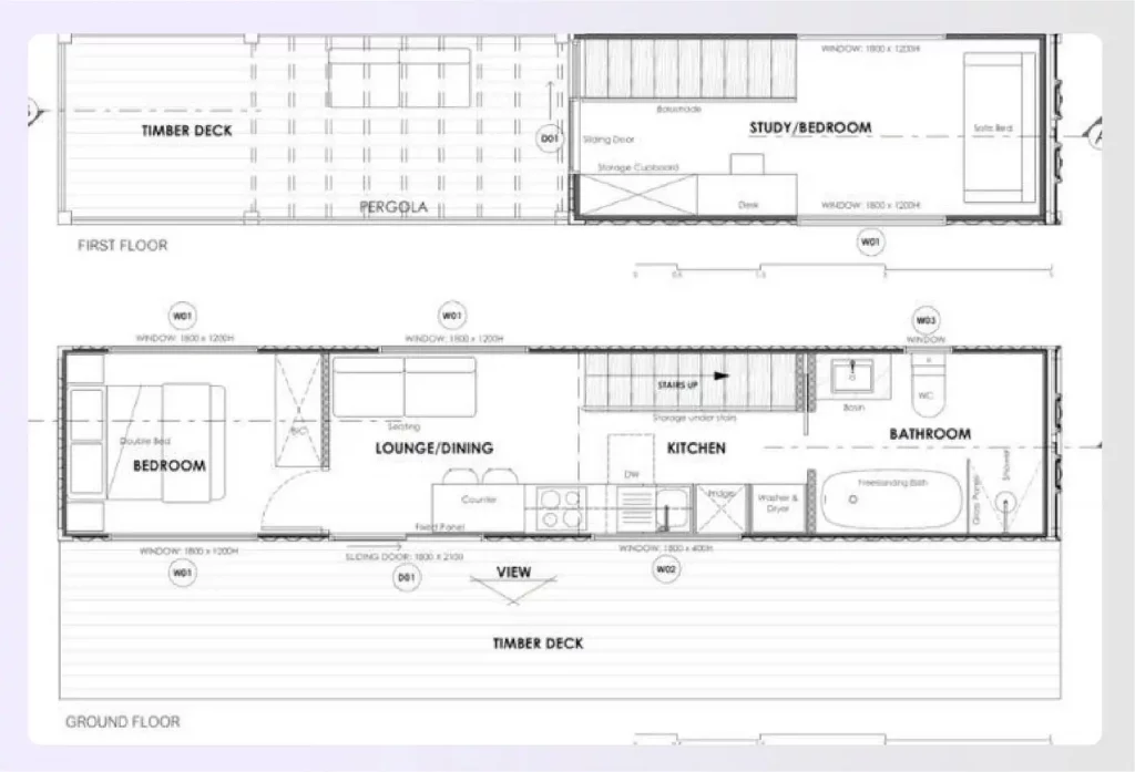
6. The Stacked Two-Story Home
For a truly impressive modern container home design, stacking containers creates a second story. This approach maximizes your living space on a smaller land footprint and can provide stunning views from the upper level. With a tool like Foyr Neo, you can use the Pan Feature and Guidelines to perfectly position elements on both floors, ensuring your design is symmetrical and clearances meet code requirements.
Key Features:
- An internal staircase connects the two levels of living space.
- The ground floor can be used for common areas, with bedrooms upstairs.
- An upper-level balcony or rooftop deck adds valuable outdoor space.
- The stacked design makes a bold architectural statement.
Best For: Families needing more square footage on a limited lot size or anyone wanting to capitalize on scenic views.

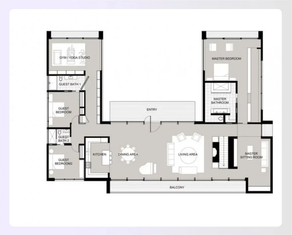
7. The U-Shaped with a Central Courtyard
Using three or more containers, this layout creates a stunning home centered around a private courtyard. This design is the ultimate for indoor-outdoor living, with nearly every room in the house opening up to the central outdoor space.
Key Features:
- Provides the ultimate private and sheltered outdoor sanctuary.
- Different wings can be designated for living, sleeping, and working.
- Floor-to-ceiling windows can line the inner walls for amazing views.
- Allows for excellent cross-ventilation and natural light throughout the home.
Best For: Larger families or those who desire a luxurious and private retreat with a strong emphasis on outdoor living.

Specialty Container Home Floor Plans
These designs cater to specific lifestyles and needs, showcasing how adaptable storage containers home plans can be.
8. Off-Grid Container Cabin Plans
This plan focuses on sustainability and self-sufficiency. It incorporates features like solar panel placement, rainwater harvesting systems, and composting toilets. The layout is typically simple and efficient to minimize energy consumption.
Key Features:
- Designed to operate independently of public utilities.
- Often includes a wood-burning stove for heating.
- The layout prioritizes energy efficiency and water conservation.
- Large windows are placed strategically to maximize passive solar heating.
Best For: Environmentally conscious individuals, survivalists, or anyone looking for a remote, self-sufficient cabin or retreat.

9. Luxury Container Home Designs
Who says container homes cannot be luxurious? This modern container home design often combines multiple containers to create large, open spaces with high-end finishes. Features may include floor-to-ceiling glass walls, spa-like bathrooms, and gourmet kitchens. You can bring these luxurious details to life with Foyr Neo’s AI-driven, photorealistic rendering, producing stunning 12K quality visuals that showcase every material and texture accurately for impressive client presentations.
Key Features:
- Sprawling open-concept living areas created from multiple containers.
- High-end materials like marble countertops and hardwood floors.
- Advanced smart home technology integrated throughout the design.
- Features like a home theater, wine cellar, or home gym.
Best For: Anyone looking to build a statement home that combines industrial chic with high-end luxury and modern amenities.

What to Consider Before Choosing a Container Home Floor Plan?
Picking a layout is exciting, but there are a few practical considerations to keep in mind. Thinking about these factors early will save you headaches down the road.
- Insulation & Interior Walls: Remember that adding insulation and interior framing will reduce your internal dimensions. You can lose up to six inches from each wall, so factor this into your container home floor plans to ensure your furniture fits.
- Window & Door Placement: Cutting openings into a container affects its structural integrity. You need to carefully plan the placement of your windows and doors to ensure you get enough natural light and ventilation without compromising the structure.
- Plumbing & Electrical: It is much easier and cheaper to plan for your utilities from the start. Decide where your kitchen, bathroom, and outlets will go early in the design process to avoid the costly task of retrofitting them later.
- Ceiling Height: A standard container has a ceiling height of about 8 feet, which can feel lower after adding insulation and flooring. High cube containers offer an extra foot of height, making the space feel much more open and airy.
- Local Building Codes and Regulations: This is a big one. Every municipality has different rules for container homes. Before you finalize any shipping container house floor plan, check with your local building authority to understand the specific requirements and restrictions in your area.
For hands-on support turning your container home floor plans into stunning interiors, explore Foyr’s interior design services, where experts personalize every detail from materials to lighting starting from just $99.
Design Your Own Container Home Floor Plan with Foyr Neo
Feeling inspired to create your own unique container house plan? With the right tool, you can bring your vision to life faster than you ever thought possible. Foyr is a powerful, all-in-one interior design software made for interior designers like you.
Check out this video to see how you can design complete floor plans in minutes with Foyr:
- Intuitive 2D & 3D planning to easily create and visualize your floor plans.
- An extensive library of 60,000+ render-ready 3D models and furniture.
- AI-powered rendering that delivers photorealistic 12K quality images in minutes.
- Smart tools like the Ruler and Guidelines for precise, accurate designs.
- Cloud-based access lets you work on your designs from anywhere, even on an iPad.
Ready to start designing? See how Foyr Neo can optimize your workflow and help you create stunning container home floor plans.
Sign up for a 14-day free trial and bring your design ideas to life!
Frequently Asked Questions (FAQs)
How much floor space is in a 40ft container?
A standard 40ft container (40′ long by 8′ wide) offers approximately 320 square feet of gross floor space. However, after you add insulation and interior walls, the usable living space is typically reduced to around 280-300 square feet, depending on the thickness of your materials.
What is the standard floor of a container?
Shipping containers typically come with a marine-grade plywood floor that is about 1.1 inches thick. While this flooring is very durable and treated to resist moisture and pests, most people choose to cover it with their preferred flooring material, like laminate, vinyl, or tile, for aesthetic and comfort reasons.
What is the best base for a container home?
The best foundation for a container home depends on your soil type and local building codes. Common options include a concrete slab, which offers excellent stability, or pier foundations, which are more affordable and have less environmental impact. It is crucial to ensure the foundation is perfectly level.
Does a container home rust?
Shipping containers are made from Corten steel, which is designed to resist rust and corrosion from harsh marine environments. While they are highly durable, any scratches or cuts in the paint can lead to rust over time. Proper maintenance and a quality exterior paint job are essential.
What is the lifespan of a container house?
A well-maintained container home can last for 25 years or more. The lifespan depends heavily on the condition of the container at purchase, the climate, and how well it is maintained. With proper rust prevention, a protective roof, and regular upkeep, its longevity can be extended significantly.




